header-logo2.png Huurflits

Appartement Ten Hovestraat in Den Haag

Ten Hovestraat , 2582 RP Den Haag

€ 1.950,00 excl. G/W/E

Beschrijving

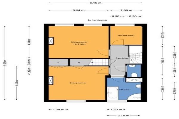
Indeling Via de entree op de eerste verdieping stapt u binnen in de ruime en lichte woonkamer met karakteristieke erker en grote raampartijen. De aan de achterzijde gelegen nieuwe keuken is uitgevoerd in een moderne opstelling en voorzien van alle gebruikelijke inbouwapparatuur. Vanuit de keuken is toegang tot het balkon op de ochtendzon. De compleet vernieuwde badkamer is luxe afgewerkt en voorzien van een inloopdouche en wastafelmeubel. Daarnaast beschikt het appartement over een separaat toilet. Er zijn twee comfortabele slaapkamers, ideaal voor een stel, logeerkamer of thuiswerkplek. In de onderbouw is een praktische privé berging aanwezig

Verstuur een bericht

Door een bericht te sturen kom je in contact met de aanbieder of makelaar van de woning.

Bericht versturen

Woningdetails

  • Huurprijs p.m. :

  • Oppervlakte :

  • Kamers :

  • Badkamers :

  • Slaapkamers :

  • € 1.950,00

  • 77 m2

  • 3

  • 1

  • 2

  • Woningtype :

  • Interieur :

  • Beschikbaar vanaf :

  • Beschikbaar tot :

  • Huisgenoot :

  • Appartement

  • n/a

  • 03-12-2025

  • n/a

  • 0

Faciliteiten

  • Badkamer :

  • Toilet :

  • Keuken :

  • Woonkamer :

  • Internet beschikbaar :

  • Privé

  • Privé

  • Privé

  • Privé

  • Ja

  • Huisdieren :

  • Roken :

  • Parkeerplaats :

  • Fietsenstalling :

  • Toegestaan

  • Toegestaan

  • Niet beschikbaar

  • Niet beschikbaar

Locatie