header-logo2.png Huurflits

Appartement Runstraat in Amsterdam

Runstraat , 1016 HS Amsterdam

€ 3.000,00 excl. G/W/E

Beschrijving

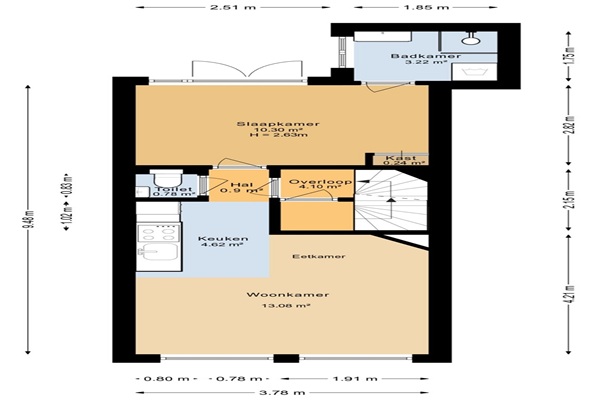
Indeling: Via het trappenhuis bereik je de entree van het appartement. Op deze verdieping bevindt zich een lichte woonkamer met grote ramen en een open keuken voorzien van moderne inbouwapparatuur. Aan de achterzijde ligt een slaapkamer met aangrenzende badkamer (met douche en wastafel). Daarnaast is er een apart toilet in de hal. Via de trap in de hal bereik je de bovenste verdieping. Hier vind je opnieuw een gezellige woonkamer met een open keukentje, een badkamer met douche en toilet, en een slaapkamer aan de achterzijde. Dankzij deze slimme indeling kunnen beide verdiepingen als zelfstandige woonruimtes functioneren – perfect voor twee bewoners die samen willen wonen maar toch hun eigen plek willen behouden. -Ideaal voor woningdelers. Helaas is het appartement niet geschikt voor partijen die met garantstellers willen huren. -Geen studenten -Maximaal 2 bewoners!

Verstuur een bericht

Door een bericht te sturen kom je in contact met de aanbieder of makelaar van de woning.

Bericht versturen

Woningdetails

  • Huurprijs p.m. :

  • Oppervlakte :

  • Kamers :

  • Badkamers :

  • Slaapkamers :

  • € 3.000,00

  • 75 m2

  • 4

  • 2

  • 2

  • Woningtype :

  • Interieur :

  • Beschikbaar vanaf :

  • Beschikbaar tot :

  • Huisgenoot :

  • Appartement

  • n/a

  • 02-12-2025

  • n/a

  • 0

Faciliteiten

  • Badkamer :

  • Toilet :

  • Keuken :

  • Woonkamer :

  • Internet beschikbaar :

  • Privé

  • Privé

  • Privé

  • Privé

  • Ja

  • Huisdieren :

  • Roken :

  • Parkeerplaats :

  • Fietsenstalling :

  • Toegestaan

  • Toegestaan

  • Niet beschikbaar

  • Niet beschikbaar

Locatie