Huurflits
Boterdiepstraat , 1079 SW Amsterdam
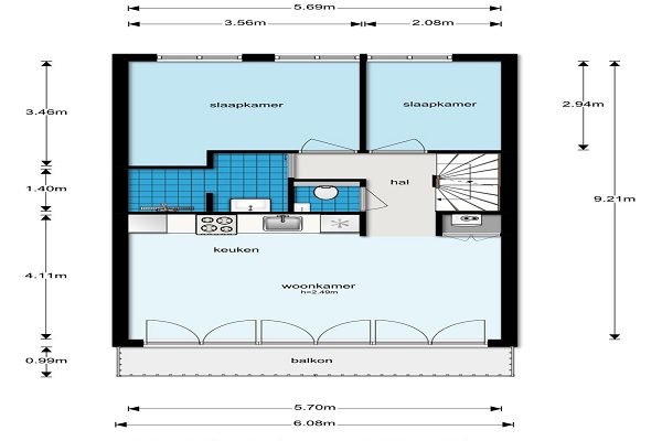
GEEN STUDENTEN GEEN GARANTIES NIET GESCHIKT OM TE DELEN Indeling: Op de tweede verdieping heeft u uw eigen entree die via een interne trap naar de derde verdieping leidt. De woonkamer met open keuken bevindt zich aan de achterzijde van de woning en heeft veel lichtinval door de grote openslaande deuren naar het balkon. De nieuwe keuken is voorzien van alle benodigde apparatuur, een Quooker en veel kastruimte. Het aanrechtblad is van witte steen en de kasten zijn stijlvol uitgevoerd in de kleur steengrijs. Er is een aansluiting voor de wasmachine en droger, maar u kunt deze ook op de overloop van het dakhuis plaatsen. De badkamer is voorzien van een inloopdouche met een prachtige designkast met grote spiegel en designradiator. De twee slaapkamers bevinden zich aan de voorzijde van het appartement. Er is een hoofdslaapkamer en een tweede slaapkamer, momenteel in gebruik als thuiskantoor. Het aparte toilet bevindt zich in de hal, waar ook de trap naar het dakterras van 30m2 met een schitterend uitzicht! Door de gehele woning ligt een prachtige eikenhouten vloer en het appartement is gestoffeerd.
Huurprijs p.m. :
Oppervlakte :
Kamers :
Badkamers :
Slaapkamers :
€ 2.400,00
59 m2
3
1
2
Woningtype :
Interieur :
Beschikbaar vanaf :
Beschikbaar tot :
Huisgenoot :
Appartement
n/a
25-11-2025
n/a
0
Badkamer :
Toilet :
Keuken :
Woonkamer :
Internet beschikbaar :
Privé
Privé
Privé
Privé
Ja
Huisdieren :
Roken :
Parkeerplaats :
Fietsenstalling :
Toegestaan
Toegestaan
Niet beschikbaar
Niet beschikbaar