Huurflits
Admiraliteitskade , Rotterdam
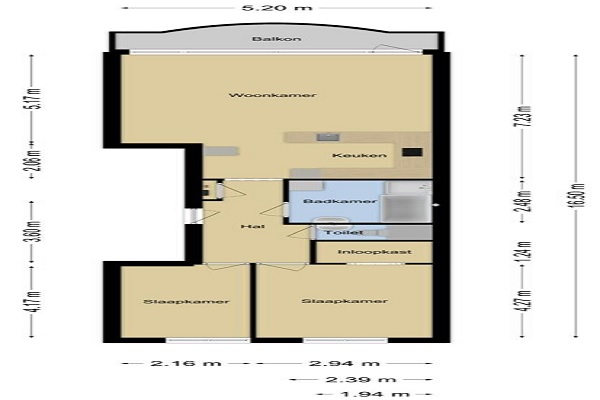
Entree met bellentableau, brievenbussen en liften die toegang geven tot de (privé) bergingen en het appartement. -Alle wanden glad gestuukt en plafond, kozijnen en deuren geschilderd. -Ruime hal met meterkast (nieuwe meterkast). -Ruime, lichte woonkamer (ca. 7,25 x 5,25m) aan de voorzijde, met een deur naar het balkon op het zuiden. -De voorzijde van het gebouw is zeer zonnig en heeft uitzicht op het water. -Volledig nieuwe keuken voorzien van alle gemakken (koelkast, vriezer, wasmachine, combimagnetron en inductiekookplaat met aanrechtbladafzuiging). -Volledig nieuwe badkamer (aparte, ruime inloopdouche, dubbele wastafel, spiegel met verlichting, badmeubel en wasmachine en droger). -Volledig nieuw toilet (wandcloset). -Hoofdslaapkamer (ca. 4,30 x 2,95 m) plus aangrenzende inloopkast (1,30 x 1,95 m). -Tweede slaap-/werkkamer (ca. 4,30 x 2,25 m).
Huurprijs p.m. :
Oppervlakte :
Kamers :
Badkamers :
Slaapkamers :
€ 2.395,00
76 m2
3
1
2
Woningtype :
Interieur :
Beschikbaar vanaf :
Beschikbaar tot :
Huisgenoot :
Appartement
n/a
21-11-2025
n/a
0
Badkamer :
Toilet :
Keuken :
Woonkamer :
Internet beschikbaar :
Privé
Privé
Privé
Privé
Ja
Huisdieren :
Roken :
Parkeerplaats :
Fietsenstalling :
Toegestaan
Toegestaan
Niet beschikbaar
Niet beschikbaar