Huurflits
Baden Powellweg , Amsterdam
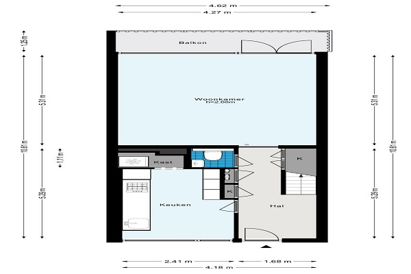
INDELING: Entree appartement op de tweede verdieping: hal met garderobemogelijkheid. Toilet met fonteintje. De ruime woonkamer is aan de achterzijde van het complex met aangrenzend het zonnige balkon op het zuidwesten, met heerlijke middag- en avondzon. De keuken is voorzien van divers apparatuur en een aparte wasmachine en drogerruimte. Trap naar de boven, ruime hal, ruime slaapkamer aan de achterzijde met weids uitzicht over groen. In het middendeel is de badkamer, deze is voorzien van een bubbelbad, toilet en wastafelmeubel. Aan de voorzijde zijn nog 2 slaapkamers; een middel grote en een kleine. In de onderbouw is er een eigen berging. De woning is onlangs gerenoveerd met nieuwe goed geïsoleerde ramen en puien zowel aan de voorzijde al gehele achterzijde van de woning. Het vermelde energie label is inmiddels achterhaald.
Huurprijs p.m. :
Oppervlakte :
Kamers :
Badkamers :
Slaapkamers :
€ 1.600,00
93 m2
4
1
3
Woningtype :
Interieur :
Beschikbaar vanaf :
Beschikbaar tot :
Huisgenoot :
Appartement
n/a
01-12-2025
n/a
0
Badkamer :
Toilet :
Keuken :
Woonkamer :
Internet beschikbaar :
Privé
Privé
Privé
Privé
Ja
Huisdieren :
Roken :
Parkeerplaats :
Fietsenstalling :
Toegestaan
Toegestaan
Niet beschikbaar
Niet beschikbaar