Huurflits
Prins Hendriklaan , 1075 BB Amsterdam
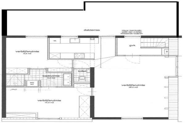
Indeling De indrukwekkende hoofdentree bevindt zich aan de zijkant van de woning op de eerste verdieping. Via het brede en eveneens vernieuwde trappenhuis bereikt u de eigen entree op de vierde verdieping. Op de overloop heeft u nog wat opbergruimte voor uw jassen en schoenen. U komt het appartement binnen in de woonkamer met originele balken aan de voorzijde bij de woning. Door de hoogte van het plafond en de extra ramen is het een zeer lichte woonkamer. De semi open designkeuken ligt aan de achterzijde van het appartement en is voorzien van alle benodigde inbouwapparatuur. Hier vind je tevens de toegang tot het geweldige zonnige dakterras van maar liefst 30M2! Via de gang komt u bij het aparte toilet en de eerste slaapkamer aan de achterzijde van de woning. Via de woonkamer is de tweede hoofdslaapkamer bereikbaar. Beide slaapkamers zijn voorzien van op maat gemaakte kasten en directe toegang tot de badkamer. Gunstig gelegen tussen de slaapkamers en voorzien van een grote regendouche, grote wastafel en een aparte wasmachine en droger (aanwezig). Door het gehele appartement ligt een mooie houten vloer en in alle kamers is airconditioning geplaatst. Het appartement heeft een Energielabel A.
Huurprijs p.m. :
Oppervlakte :
Kamers :
Badkamers :
Slaapkamers :
€ 2.850,00
72 m2
3
1
2
Woningtype :
Interieur :
Beschikbaar vanaf :
Beschikbaar tot :
Huisgenoot :
Appartement
n/a
01-02-2026
n/a
0
Badkamer :
Toilet :
Keuken :
Woonkamer :
Internet beschikbaar :
Privé
Privé
Privé
Privé
Ja
Huisdieren :
Roken :
Parkeerplaats :
Fietsenstalling :
Toegestaan
Toegestaan
Niet beschikbaar
Niet beschikbaar