Huurflits
Bijlmerdreef , 1102 BL Amsterdam
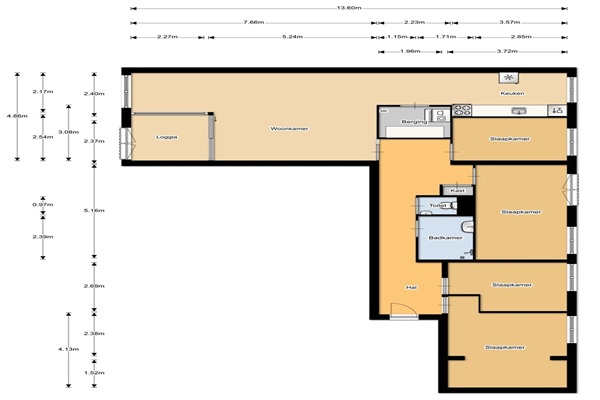
GEEN WONINGDELERS TOEGESTAAN, GEEN STUDENTEN INDELING: Nette gemeenschappelijke entree met video-intercom installatie en postbussen. Middels het gemeenschappelijke trappenhuis of de lift bereikt u de woning, welke is gelegen op de derde verdieping. Vanuit de centraal gesitueerde hal zijn alle vertrekken in het appartement bereikbaar. De ruime en lichte woonkamer biedt toegang tot de zonnige loggia en biedt u een fraai uitzicht over de nabij gelegen groenstrook en de winkels aan de Bijlmerdreef. De woonkamer grenst aan de moderne keuken gelegen aan de achterzijde. Naast de keuken is een inpandige berging voor de wasmachine- en de drogeropstelling. Er is hier ook nog genoeg ruimte voor een grote stellingkast en een vriezer. Voorts treft u aan de voorzijde van het appartement een viertal goed bemeten slaapkamers. De slaapkamers hebben voldoende ruimte voor een flinke kledingkast en een tweepersoons bed. De badkamer is voorzien van een inloopdouche, wastafel en radiator. Separaat treft u het toilet met fonteintje.
Huurprijs p.m. :
Oppervlakte :
Kamers :
Badkamers :
Slaapkamers :
€ 2.250,00
130 m2
5
1
4
Woningtype :
Interieur :
Beschikbaar vanaf :
Beschikbaar tot :
Huisgenoot :
Appartement
n/a
19-11-2025
n/a
0
Badkamer :
Toilet :
Keuken :
Woonkamer :
Internet beschikbaar :
Privé
Privé
Privé
Privé
Ja
Huisdieren :
Roken :
Parkeerplaats :
Fietsenstalling :
Toegestaan
Toegestaan
Niet beschikbaar
Niet beschikbaar