Huurflits
Van Noordtkade , 1013 BZ Amsterdam
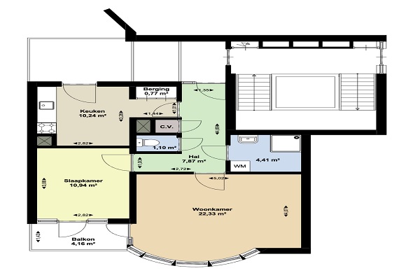
INDELING: Entree op de derde verdieping; dichte keuken voorzien van inbouwapparatuur, de woonkamer met toegang tot het balkon en de slaapkamer aan de achterzijde, een separaat toilet met een fonteintje, de badkamer is voorzien van een douche en een wastafel. Berging gelegen in de onderbouw. Geen verhuur aan studenten!;
Huurprijs p.m. :
Oppervlakte :
Kamers :
Badkamers :
Slaapkamers :
€ 1.800,00
61 m2
2
1
1
Woningtype :
Interieur :
Beschikbaar vanaf :
Beschikbaar tot :
Huisgenoot :
Appartement
n/a
17-11-2025
n/a
0
Badkamer :
Toilet :
Keuken :
Woonkamer :
Internet beschikbaar :
Privé
Privé
Privé
Privé
Ja
Huisdieren :
Roken :
Parkeerplaats :
Fietsenstalling :
Toegestaan
Toegestaan
Niet beschikbaar
Niet beschikbaar