Huurflits
Flakkeesestraat , 3083 SP Rotterdam
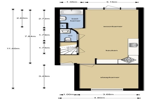
Indeling Entree, hal met toilet. Trap naar souterrain welke als ruime (18m2) slaapkamer dient. Ruime en lichte slaapkamer (13m2) aan de voorzijde. De woonkamer is voorzien van een open keuken met diverse inbouwapparatuur en middels een deur is via de woonkamer aan de achterzijde de gesloten tuin bereikbaar Fijne badkamer met douche in bad en wastafel met meubel. -Beschikbaar voor 2 studenten welke elkaar kennen
Huurprijs p.m. :
Oppervlakte :
Kamers :
Badkamers :
Slaapkamers :
€ 1.485,00
75 m2
3
1
2
Woningtype :
Interieur :
Beschikbaar vanaf :
Beschikbaar tot :
Huisgenoot :
Appartement
n/a
15-11-2025
n/a
0
Badkamer :
Toilet :
Keuken :
Woonkamer :
Internet beschikbaar :
Privé
Privé
Privé
Privé
Ja
Huisdieren :
Roken :
Parkeerplaats :
Fietsenstalling :
Toegestaan
Toegestaan
Niet beschikbaar
Niet beschikbaar