header-logo2.png Huurflits

Appartement Scheepstimmermanslaan in Rotterdam

Scheepstimmermanslaan , 3016 AC Rotterdam

€ 2.475,00 excl. G/W/E

Beschrijving

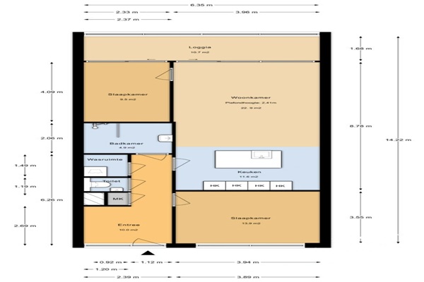
Indeling Bij binnenkomst in de ruime hal wordt u direct verwelkomd door een gevoel van ruimte en comfort. De hal biedt voldoende opbergruimte voor jassen en schoenen, en geeft toegang tot alle vertrekken van het appartement, waaronder de slaapkamers, de badkamer, en de lichte woonkamer met moderne open keuken. De woonkamer biedt directe toegang tot een gezellige loggia, waar u kunt genieten van het uitzicht op het groene straatbeeld. De keuken is volledig uitgerust met hoogwaardige inbouwapparatuur van gerenommeerde merken. Zo beschikt u over een inductiekookplaat met geïntegreerde afzuiging, wat zorgt voor een strak en minimalistisch ontwerp zonder zichtbare afzuigkap. Daarnaast is er een ruime koelkast met vriesvak, een vaatwasser, een combi-oven, allemaal subtiel geïntegreerd in de strakke, witte keukenmeubelen. Het werkblad is vervaardigd van duurzaam materiaal, wat niet alleen zorgt voor een luxe uitstraling, maar ook praktisch is in het dagelijks gebruik. Het appartement beschikt over twee ruime slaapkamers, elk met een eigen unieke uitstraling. De master bedroom is voorzien van een comfortabel bed en voldoende kastruimte, waardoor u zich direct thuis zult voelen. De tweede slaapkamer is ideaal als werkruimte of gastenkamer, met een stijlvolle inrichting en veel natuurlijk licht. De badkamer is modern en functioneel ingericht, met een inloopdouche, wastafelmeubel en praktische opbergmogelijkheden. Daarnaast is er een separaat toilet aanwezig, wat het comfort verder verhoogt.

Verstuur een bericht

Door een bericht te sturen kom je in contact met de aanbieder of makelaar van de woning.

Bericht versturen

Woningdetails

  • Huurprijs p.m. :

  • Oppervlakte :

  • Kamers :

  • Badkamers :

  • Slaapkamers :

  • € 2.475,00

  • 90 m2

  • 3

  • 1

  • 2

  • Woningtype :

  • Interieur :

  • Beschikbaar vanaf :

  • Beschikbaar tot :

  • Huisgenoot :

  • Appartement

  • n/a

  • 01-12-2025

  • n/a

  • 0

Faciliteiten

  • Badkamer :

  • Toilet :

  • Keuken :

  • Woonkamer :

  • Internet beschikbaar :

  • Privé

  • Privé

  • Privé

  • Privé

  • Ja

  • Huisdieren :

  • Roken :

  • Parkeerplaats :

  • Fietsenstalling :

  • Toegestaan

  • Toegestaan

  • Niet beschikbaar

  • Niet beschikbaar

Locatie