header-logo2.png Huurflits

Appartement KNSM-laan in Amsterdam

KNSM-laan , 1019 LS Amsterdam

€ 2.350,00 excl. G/W/E

Beschrijving

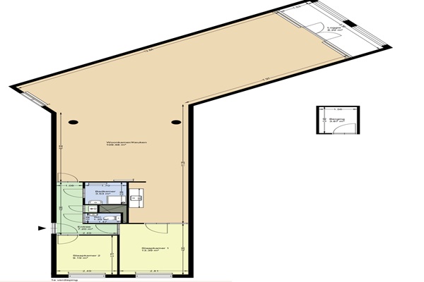
INDELING: Entree op de de eerste verdieping, hal, woonkamer met een half-open keuken en aan de achterzijde het inpandig balkon, de badkamer is voorzien van een douche en een wastafel, een separaat toilet voorzien van een fonteintje, twee slaapkamers. Geen verhuur aan studenten!; De woning mag door maximaal 2 VOLWASSENEN bewoond worden (kinderen zijn welkom);

Verstuur een bericht

Door een bericht te sturen kom je in contact met de aanbieder of makelaar van de woning.

Bericht versturen

Woningdetails

  • Huurprijs p.m. :

  • Oppervlakte :

  • Kamers :

  • Badkamers :

  • Slaapkamers :

  • € 2.350,00

  • 144 m2

  • 3

  • 1

  • 2

  • Woningtype :

  • Interieur :

  • Beschikbaar vanaf :

  • Beschikbaar tot :

  • Huisgenoot :

  • Appartement

  • n/a

  • 12-11-2025

  • n/a

  • 0

Faciliteiten

  • Badkamer :

  • Toilet :

  • Keuken :

  • Woonkamer :

  • Internet beschikbaar :

  • Privé

  • Privé

  • Privé

  • Privé

  • Ja

  • Huisdieren :

  • Roken :

  • Parkeerplaats :

  • Fietsenstalling :

  • Toegestaan

  • Toegestaan

  • Niet beschikbaar

  • Niet beschikbaar

Locatie