header-logo2.png Huurflits

Appartement Friesestraatweg in Groningen

Friesestraatweg , 9743 AE Groningen

€ 960,00 excl. G/W/E

Beschrijving

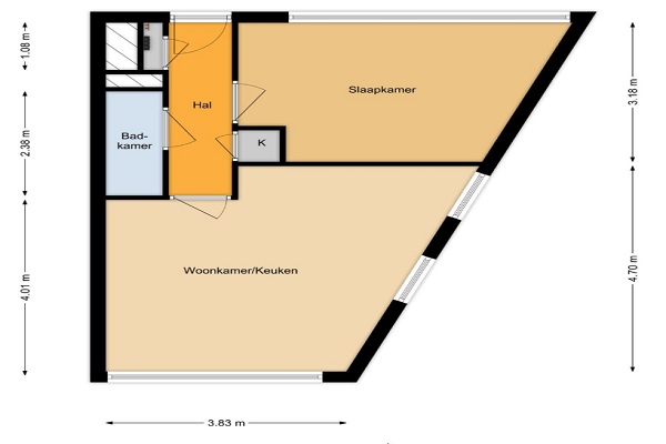
Modern appartementencomplex, gelegen in de populaire Schildersbuurt, aan de westkant van de stad Groningen. Het kleinschalige appartementencomplex bestaat uit 5 verdiepingen en telt 48 woningen met een oppervlakte tussen 40 m2 en 112 m2. Het complex is voorzien van een lift. Tevens is het complex voorzien van zonnepanelen. Aan de Friesestraatweg vindt u dit mooie 2-kamerappartement van 44 m². In deze woning woont u op de tweede verdieping. De woonkamer staat in open verbinding met de keuken welke compleet is voorzien van inbouwapparatuur. Vanuit de hal komt u in de slaapkamer, woonkamer/ keuken en de badkamer met inloopdouche en wastafel. De aansluiting voor de wasmachine en droger zijn in de badkamer te vinden. Dit appartement heeft een balkon van 4 m² op het zuidwesten. Alle wanden in de woning zijn voorzien van behang. De getoonde afbeeldingen zijn ter illustratie en niet per se de feitelijke weergave van de woning.

Verstuur een bericht

Door een bericht te sturen kom je in contact met de aanbieder of makelaar van de woning.

Bericht versturen

Woningdetails

  • Huurprijs p.m. :

  • Oppervlakte :

  • Kamers :

  • Badkamers :

  • Slaapkamers :

  • € 960,00

  • 44 m2

  • 2

  • 1

  • 1

  • Woningtype :

  • Interieur :

  • Beschikbaar vanaf :

  • Beschikbaar tot :

  • Huisgenoot :

  • Appartement

  • n/a

  • 08-11-2025

  • n/a

  • 0

Faciliteiten

  • Badkamer :

  • Toilet :

  • Keuken :

  • Woonkamer :

  • Internet beschikbaar :

  • Privé

  • Privé

  • Privé

  • Privé

  • Ja

  • Huisdieren :

  • Roken :

  • Parkeerplaats :

  • Fietsenstalling :

  • Toegestaan

  • Toegestaan

  • Niet beschikbaar

  • Niet beschikbaar

Locatie