header-logo2.png Huurflits

Appartement Van Alkemadelaan in Den Haag

Van Alkemadelaan , 2597 AC Den Haag

€ 2.100,00 incl. G/W/E

Beschrijving

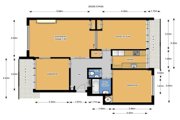
Indeling: hoofdingang met bellentableau, brievenbussen en lift. Entree appartement op de zesde etage, hal met ruimte voor jassen, een grote spiegel, een mooie inbouwkast met veel ruimte en een toilet, de ruime woon/eetkamer is gescheiden door prachtige schuifdeuren en heeft aan de voor- en achterkant ramen waardoor er veel natuurlijk licht binnen komt. Er bevinden zich ruime inbouwkasten. Vanuit de eetkamer is het balkon met uitzicht over de duinen bereikbaar, vanuit de woonkamer aan de voorkant is een ruime zijkamer bereikbaar welke makkelijk kan worden afgesloten door middel van schuifdeuren. Toegang tot het balkon met een vrij uitzicht over de duinen en het mooie Belgische Park en u kijkt mooi uit richting strand en zee. De zijkamer kan worden gebruikt als gastenkamer, study of gewoon als onderdeel van de woonkamer als de schuifdeuren open blijven. Vanuit de hal komt u in een aparte keuken (aan de achterzijde gesitueerd) met opnieuw een prachtig uitzicht over de duinen. De keuken is voorzien van alle moderne apparatuur (oven, koelkast/vriezer, vaatwasser, wasmachine) en heeft veel kastruimte. Het fornuis werkt op gas. De hoofd slaapkamer ligt aan de achterzijde van het appartement en heeft een dubbel bed en een grote kast. De badkamer heeft een grote douche, handdoekverwarming en een wastafelmeubel met 2 lades en spiegelkast met verlichting. Op de begane grond van het gebouw vindt u een goed formaat berging. Parkeren is vrij. geschikt voor 1 persoon of een stel niet voor delers/studenten

Verstuur een bericht

Door een bericht te sturen kom je in contact met de aanbieder of makelaar van de woning.

Bericht versturen

Woningdetails

  • Huurprijs p.m. :

  • Oppervlakte :

  • Kamers :

  • Badkamers :

  • Slaapkamers :

  • € 2.100,00

  • 95 m2

  • 3

  • 1

  • 2

  • Woningtype :

  • Interieur :

  • Beschikbaar vanaf :

  • Beschikbaar tot :

  • Huisgenoot :

  • Appartement

  • n/a

  • 08-11-2025

  • n/a

  • 0

Faciliteiten

  • Badkamer :

  • Toilet :

  • Keuken :

  • Woonkamer :

  • Internet beschikbaar :

  • Privé

  • Privé

  • Privé

  • Privé

  • Ja

  • Huisdieren :

  • Roken :

  • Parkeerplaats :

  • Fietsenstalling :

  • Verboden

  • Toegestaan

  • Niet beschikbaar

  • Niet beschikbaar

Locatie