Huurflits
Zoutkeetsgracht , 1013 NK Amsterdam
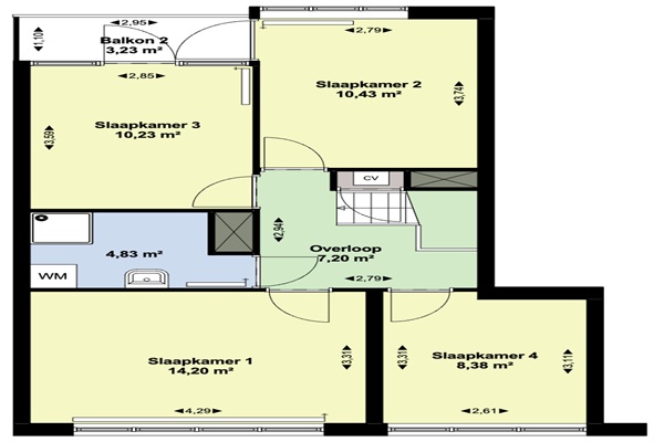
INDELING: Via het gemeenschappelijk trappenhuis naar de vierde verdieping: entree, woonkamer met een open keuken en een balkon gelegen op het zuiden, interne trap naar de vijfde verdieping. Vijfde verdieping: overloop, twee slaapkamers aan de voorzijde, de badkamer is voorzien van een douche en een wastafel, twee slaapkamers aan de achterzijde met toegang tot het balkon. Berging gelegen in de onderbouw. Geen verhuur aan studenten!; De woning mag door maximaal 2 VOLWASSENEN bewoond worden (kinderen zijn welkom);
Huurprijs p.m. :
Oppervlakte :
Kamers :
Badkamers :
Slaapkamers :
€ 2.400,00
105 m2
5
1
4
Woningtype :
Interieur :
Beschikbaar vanaf :
Beschikbaar tot :
Huisgenoot :
Appartement
n/a
07-11-2025
n/a
0
Badkamer :
Toilet :
Keuken :
Woonkamer :
Internet beschikbaar :
Privé
Privé
Privé
Privé
Ja
Huisdieren :
Roken :
Parkeerplaats :
Fietsenstalling :
Toegestaan
Toegestaan
Niet beschikbaar
Niet beschikbaar