header-logo2.png Huurflits

Appartement Julianaparklaan in Utrecht

Julianaparklaan , 3553 HM Utrecht

€ 2.295,00 excl. G/W/E

Beschrijving

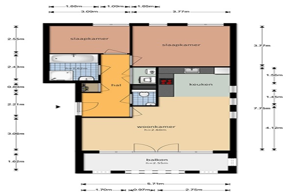
Indeling Net verzorgd entree met bellentableau en brievenbussen. Via de hal bereik je het trappenhuis, de lift en de berging in het souterrain. Je komt binnen in een ruime hal met video-intercom, separaat toilet met fontein, meterkast en praktische inbouwkast met aansluitingen voor wasmachine, droger en cv-ketel. De lichte L-vormige woonkamer (ca. 30 m²) biedt volop ruimte voor een gezellig zit- en eetgedeelte. Dankzij de hoekligging en grote raampartijen stroomt er van twee kanten zonlicht naar binnen, wat zorgt voor een warme, sfeervolle uitstraling. Via schuifdeuren bereik je het royale balkon over de volle breedte van de woning, met een heerlijk vrij uitzicht op het Julianapark. De open keuken is modern en compleet uitgerust met brede lades, keramische kookplaat, afzuigkap, koelkast, combi-oven en vaatwasser. Aan de achterzijde bevinden zich twee slaapkamers (ca. 2,55 x 3,09 m en 3,77 x 3,77 m) en de badkamer met douche, ligbad en wastafel. Geschikt voor een werkend stel.

Verstuur een bericht

Door een bericht te sturen kom je in contact met de aanbieder of makelaar van de woning.

Bericht versturen

Woningdetails

  • Huurprijs p.m. :

  • Oppervlakte :

  • Kamers :

  • Badkamers :

  • Slaapkamers :

  • € 2.295,00

  • 80 m2

  • 3

  • 1

  • 2

  • Woningtype :

  • Interieur :

  • Beschikbaar vanaf :

  • Beschikbaar tot :

  • Huisgenoot :

  • Appartement

  • n/a

  • 01-12-2025

  • n/a

  • 0

Faciliteiten

  • Badkamer :

  • Toilet :

  • Keuken :

  • Woonkamer :

  • Internet beschikbaar :

  • Privé

  • Privé

  • Privé

  • Privé

  • Ja

  • Huisdieren :

  • Roken :

  • Parkeerplaats :

  • Fietsenstalling :

  • Verboden

  • Verboden

  • Niet beschikbaar

  • Niet beschikbaar

Locatie