header-logo2.png Huurflits

Appartement Admiraal de Ruyterweg in Rotterdam

Admiraal de Ruyterweg , 3031 ZJ Rotterdam

€ 2.350,00 excl. G/W/E

Beschrijving

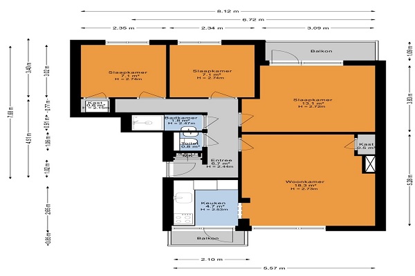
De woning is geschikt voor maximaal 3 (werkende) woningdelers (duurzaam huishouden) Indeling Gesloten portiek met bellentableau en brievenbussen. Trapopgang naar verdiepingen. In de onderbouw zijn de bergingen gelegen. Eigen entree, hal die toegang biedt tot alle vertrekken. De woonkamer is gelegen aan de voorzijde van het appartement, net als de keuken. De keuken is voorzien van een moderne keuken met onder andere een koelkast met vriesvak, oven, kookplaat en vaatwasser. De keuken biedt toegang tot het balkon aan de voorzijde. De drie slaapkamers zijn gelegen aan de achterzijde van de woning. De grote slaapkamer geeft toegang tot het tweede balkon. Op de gang is een separaat toilet. De badkamer is volledig betegeld en voorzien van een wastafelmeubel en nette douche.

Verstuur een bericht

Door een bericht te sturen kom je in contact met de aanbieder of makelaar van de woning.

Bericht versturen

Woningdetails

  • Huurprijs p.m. :

  • Oppervlakte :

  • Kamers :

  • Badkamers :

  • Slaapkamers :

  • € 2.350,00

  • 67 m2

  • 4

  • 1

  • 3

  • Woningtype :

  • Interieur :

  • Beschikbaar vanaf :

  • Beschikbaar tot :

  • Huisgenoot :

  • Appartement

  • n/a

  • 05-11-2025

  • n/a

  • 0

Faciliteiten

  • Badkamer :

  • Toilet :

  • Keuken :

  • Woonkamer :

  • Internet beschikbaar :

  • Privé

  • Privé

  • Privé

  • Privé

  • Ja

  • Huisdieren :

  • Roken :

  • Parkeerplaats :

  • Fietsenstalling :

  • Verboden

  • Verboden

  • Niet beschikbaar

  • Niet beschikbaar

Locatie