header-logo2.png Huurflits

Appartement Beukelsweg in Rotterdam

Beukelsweg , 3022 GM Rotterdam

€ 1.027,00 excl. G/W/E

Beschrijving

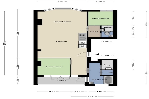
LET OP: De woning is ENKEL beschikbaar voor een STUDENT die niet uit gemeente Rotterdam komt en waarvan de duur van zijn/ haar studie ca. 2 jaar duurt Indeling De gemeenschappelijke hal met biedt toegang tot de appartementen en het trappenhuis. Vanuit de hal is er toegang tot vrijwel alle vertrekken. De woonkamer heeft grote ramen met veel lichtinval en is gelegen aan de voorzijde, evenals de tweede slaap-/werkkamer. De open keuken is voorzien van een complete inventaris zoals een vaatwasser, combi-oven, inductie kookplaat en koel- vriescombinatie. De hoofdslaapkamer ligt aan de achterzijde en biedt toegang tot het balkon door middel van openslaande deuren. De ruime badkamer is voorzien van een wastafel met spiegel, handdoekradiator, ligbad en en separate douche. In een kast zit de wasmachine-aansluiting. Separaat toilet.

Verstuur een bericht

Door een bericht te sturen kom je in contact met de aanbieder of makelaar van de woning.

Bericht versturen

Woningdetails

  • Huurprijs p.m. :

  • Oppervlakte :

  • Kamers :

  • Badkamers :

  • Slaapkamers :

  • € 1.027,00

  • 72 m2

  • 3

  • 1

  • 2

  • Woningtype :

  • Interieur :

  • Beschikbaar vanaf :

  • Beschikbaar tot :

  • Huisgenoot :

  • Appartement

  • n/a

  • 05-11-2025

  • n/a

  • 0

Faciliteiten

  • Badkamer :

  • Toilet :

  • Keuken :

  • Woonkamer :

  • Internet beschikbaar :

  • Privé

  • Privé

  • Privé

  • Privé

  • Ja

  • Huisdieren :

  • Roken :

  • Parkeerplaats :

  • Fietsenstalling :

  • Verboden

  • Verboden

  • Niet beschikbaar

  • Niet beschikbaar

Locatie