header-logo2.png Huurflits

Huis Amstel in Amsterdam

Amstel , Amsterdam

€ 2.100,00 excl. G/W/E

Beschrijving

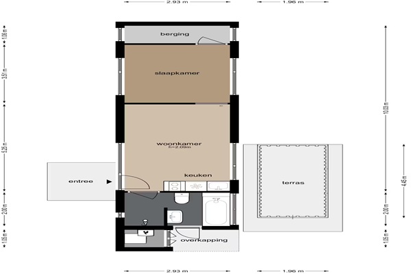
Een prachtige luxe, recent gerenoveerde woonboot in de stijl van een loft. De ark staat op een unieke locatie midden in het historische centrum van Amsterdam aan de Amstel. Vanaf de ark heb je een prachtig uitzicht op de magere brug, historische schepen en de typische oude huizen. 'S Avonds wanneer de kaarsjes op de brug branden en de historische lantaarns aansteken waan je je in een schilderij van Rembrandt van Rijn. Wij zijn op zoek naar een leuke betrouwbare persoon voor onze unieke woonark. De woonark is voorzien van alle moderne gemakken waaronder wasmachine/droger en met prachtig uitzicht over het water en de magere brug en een aparte regendouche en handdoeken aanwezig. Er is een volledig uitgeruste keuken met koelkast, gasfornuis en serviesgoed. Er is ook airconditioning en centrale verwarming. De ark is voorzien van 2 elektrische boxspringbedden met linnengoed. Uiteraard zijn 2 LCD TV's, audio en een snelle internetverbinding aanwezig. De huur van de woonboot is inclusief een elektrische sloep. De woonboot kan niet gehuurd worden zonder de elektrische boot. Er is een terras op de boot waar u bij mooi weer kunt genieten.

Verstuur een bericht

Door een bericht te sturen kom je in contact met de aanbieder of makelaar van de woning.

Bericht versturen

Woningdetails

  • Huurprijs p.m. :

  • Oppervlakte :

  • Kamers :

  • Badkamers :

  • Slaapkamers :

  • € 2.100,00

  • 45 m2

  • 2

  • 1

  • 1

  • Woningtype :

  • Interieur :

  • Beschikbaar vanaf :

  • Beschikbaar tot :

  • Huisgenoot :

  • Huurwoning

  • n/a

  • 01-04-2026

  • n/a

  • 0

Faciliteiten

  • Badkamer :

  • Toilet :

  • Keuken :

  • Woonkamer :

  • Internet beschikbaar :

  • Privé

  • Privé

  • Privé

  • Privé

  • Ja

  • Huisdieren :

  • Roken :

  • Parkeerplaats :

  • Fietsenstalling :

  • Verboden

  • Verboden

  • Niet beschikbaar

  • Niet beschikbaar

Locatie