header-logo2.png Huurflits

Appartement Jan Rozeboomstraat in Zutphen

Jan Rozeboomstraat , Zutphen

€ 1.145,00 excl. G/W/E

Beschrijving

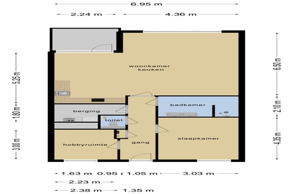
De torens aan weerszijden tellen respectievelijk 12- en 8 appartementen; het middengedeelte bestaat uit 33 appartementen. Alle 53 appartementen in De Plantage zijn georiënteerd op het park. Door de zuidelijke ligging van de balkons zal men profiteren van veel licht. Het appartementencomplex telt twee ruime entrees: één in elke toren. Ook parkeren kunt u inpandig; ieder appartement krijgt de beschikking over een vaste parkeerplaats in de ondergelegen parkeergarage. Tevens bevinden zich hier de individuele bergingen. Zo bent u van alle gemak en comfort voorzien! –Ruime woonkamer met open keuken –De keuken met hoekopstelling is voorzien van Siemens inbouwapparatuur en composiet werkblad –2 slaapkamers –Badkamer voorzien van een ruime inloopdouche met hardglazen douchescherm en een dubbele wastafel –Inpandige berging voorzien van een wasmachine aansluiting

Verstuur een bericht

Door een bericht te sturen kom je in contact met de aanbieder of makelaar van de woning.

Bericht versturen

Woningdetails

  • Huurprijs p.m. :

  • Oppervlakte :

  • Kamers :

  • Badkamers :

  • Slaapkamers :

  • € 1.145,00

  • 85 m2

  • 3

  • 1

  • 2

  • Woningtype :

  • Interieur :

  • Beschikbaar vanaf :

  • Beschikbaar tot :

  • Huisgenoot :

  • Appartement

  • n/a

  • 01-12-2025

  • n/a

  • 0

Faciliteiten

  • Badkamer :

  • Toilet :

  • Keuken :

  • Woonkamer :

  • Internet beschikbaar :

  • Privé

  • Privé

  • Privé

  • Privé

  • Ja

  • Huisdieren :

  • Roken :

  • Parkeerplaats :

  • Fietsenstalling :

  • Toegestaan

  • Toegestaan

  • Niet beschikbaar

  • Niet beschikbaar

Locatie