header-logo2.png Huurflits

Appartement Abtstraat in Maastricht

Abtstraat , 6211 LS Maastricht

€ 1.800,00 excl. G/W/E

Beschrijving

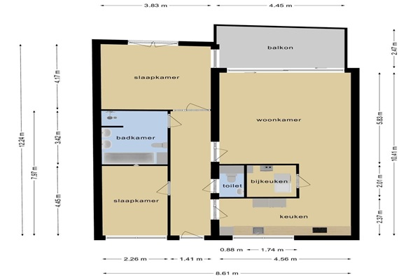
Heel fijn en van alle gemakken voorzien appartement op de 2e verdieping in een modern appartementencomplex met 2 slaapkamers balkon en privéberging in het souterrain. Dit eigentijdse complex beschikt over een lift en een gezamenlijke fietsenberging is in een rustige (één richting verkeer) gelegen maar op loopafstand van 't Vrijthof en stadspark. Vele restaurantjes in nabijheid. Begane grond: centrale entree met bellentableau (videofoon aanwezig) en brievenbussen, trappenhuis en lift. Toegang tot de gezamenlijke fietsenberging. Tweede verdieping, indeling van de woning: entree, toiletruimte met hangcloset en fonteintje, woonkamer met toegang naar het balkon en semi-open keuken. Het balcon is ruim en voorzien van een nieuw uitschuifbaar zonnescherm. De keuken is voorzien van een luxe inrichting, granieten aanrechtblad en apparatuur zijnde afzuigkap, 4-pits gasfornuis, oven, koelkast, vaatwasser. Seperate berging met wasmachineaansluiting en c.v.-installatie. Het appartement heeft 2 slaapkamers en een zeer ruime badkamer voorzien van ligbad, douche, 2e toilet, dubbele vaste wastafel en design radiator. In het souterrain is er een privéberging. beschikbaar voor één huishouden (géén woningdelers of studenten).

Verstuur een bericht

Door een bericht te sturen kom je in contact met de aanbieder of makelaar van de woning.

Bericht versturen

Woningdetails

  • Huurprijs p.m. :

  • Oppervlakte :

  • Kamers :

  • Badkamers :

  • Slaapkamers :

  • € 1.800,00

  • 96 m2

  • 3

  • 1

  • 2

  • Woningtype :

  • Interieur :

  • Beschikbaar vanaf :

  • Beschikbaar tot :

  • Huisgenoot :

  • Appartement

  • n/a

  • 01-12-2025

  • n/a

  • 0

Faciliteiten

  • Badkamer :

  • Toilet :

  • Keuken :

  • Woonkamer :

  • Internet beschikbaar :

  • Privé

  • Privé

  • Privé

  • Privé

  • Ja

  • Huisdieren :

  • Roken :

  • Parkeerplaats :

  • Fietsenstalling :

  • Toegestaan

  • Toegestaan

  • Niet beschikbaar

  • Niet beschikbaar

Locatie