header-logo2.png Huurflits

Appartement Mariastraat in Maastricht

Mariastraat , 6211 EP Maastricht

€ 928,00 excl. G/W/E

Beschrijving

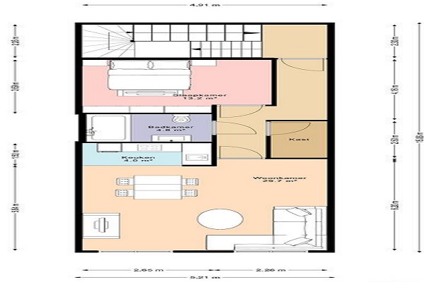
Indeling: Begane grond: entree met toegang tot de gezamenlijke fietsenberging en achtertuintje en trappenhuis naar de verdiepingen. 1e verdieping: entreehal. Woonkamer met open keuken, badkamer met ligbad, toilet en wastafelmeubel. Slaapkamer en berging.

Verstuur een bericht

Door een bericht te sturen kom je in contact met de aanbieder of makelaar van de woning.

Bericht versturen

Woningdetails

  • Huurprijs p.m. :

  • Oppervlakte :

  • Kamers :

  • Badkamers :

  • Slaapkamers :

  • € 928,00

  • 50 m2

  • 2

  • 1

  • 1

  • Woningtype :

  • Interieur :

  • Beschikbaar vanaf :

  • Beschikbaar tot :

  • Huisgenoot :

  • Appartement

  • n/a

  • 22-10-2025

  • n/a

  • 0

Faciliteiten

  • Badkamer :

  • Toilet :

  • Keuken :

  • Woonkamer :

  • Internet beschikbaar :

  • Privé

  • Privé

  • Privé

  • Privé

  • Ja

  • Huisdieren :

  • Roken :

  • Parkeerplaats :

  • Fietsenstalling :

  • Toegestaan

  • Toegestaan

  • Niet beschikbaar

  • Niet beschikbaar

Locatie