
Tuinstraat , 4571 GA Axel
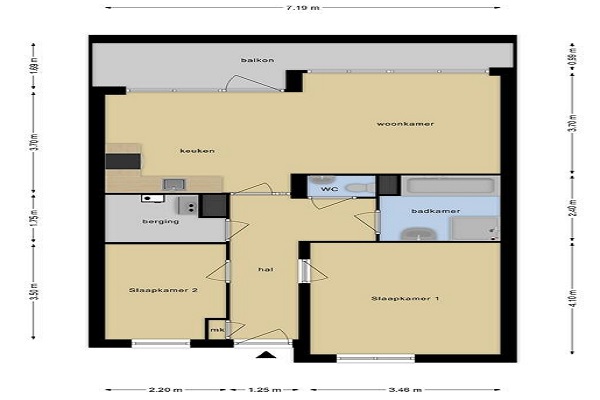
Indeling Centrale hal met brievenbussen en intercom, trappenhuis met toegang tot de lift, fietsenberging en achteruitgang naar de tuin, parking en garage. Entree appartement in de hal met een nieuwe PVC-vloer, meterkast, toilet, bergkast met de c.v (Intergas ‘14) en de wasmachineaansluiting. Gezellige woonkamer aan de voorzijde van het appartement met een deur naar een balkon. De nieuwe open keuken heeft een hoekopstelling en is voorzien van een kookplaat, afzuigkap, koelkast, combi-oven en vaatwasser. Aan de achterzijde van het appartement een ruime- en een middelgrote slaapkamer. De nette badkamer heeft een wasmeubel en een ruime inloopdouche. Achter het appartementencomplex is een ruim parkeerterrein voor de bewoners en bezoekers. Bij dit appartement hoort een nette garage. Verder is hier de gezamenlijke tuin.
Huurprijs p.m. :
Oppervlakte :
Kamers :
Badkamers :
Slaapkamers :
€ 1.050,00
71 m2
3
1
2
Woningtype :
Interieur :
Beschikbaar vanaf :
Beschikbaar tot :
Huisgenoot :
Appartement
n/a
22-10-2025
n/a
0
Badkamer :
Toilet :
Keuken :
Woonkamer :
Internet beschikbaar :
Privé
Privé
Privé
Privé
Ja
Huisdieren :
Roken :
Parkeerplaats :
Fietsenstalling :
Toegestaan
Toegestaan
Niet beschikbaar
Niet beschikbaar