
Wilde rucolavliet , 3545 CL Utrecht
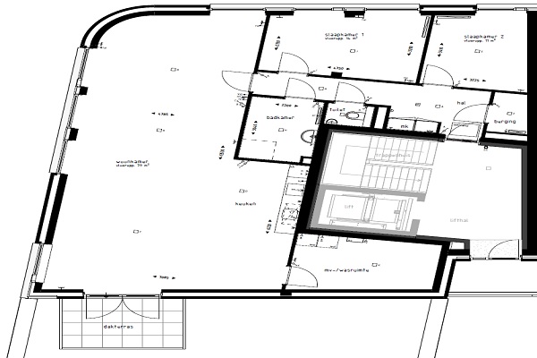
INDELING De entree biedt toegang tot nagenoeg alle vertrekken van het appartement waaronder het separaat toilet, de berging, de badkamer, de 2 slaapkamers en de royale woonkamer en keuken. De entree mondt uit in de woonkamer en keuken. De keuken is voorzien van alle gemakken, zoals een vaatwasser, combi oven / magnetron, koelkast, inductie kookplaat en moderne afzuigkap. Door de frisse en nette afwerking past deze keuken perfect in het totaal plaatje. De keuken biedt toegang tot het dakterras. Het dakterras is gelegen op het zuiden. Ideaal voor de zonliefhebbers! Vanuit de keuken is er eveneens toegang tot een royale wasruimte waar de wasmachine- en droger aansluiting zich bevinden. Door de raampartijen aan twee zijden van de woonkamer, en de speelse indeling met de ronde hoek is er veel lichtinval wat een ruimtelijk en vrij gevoel creëert. Het appartement heeft een moderne en compleet uitgevoerde badkamer. De badkamer is voorzien van een inloopdouche en een wastafel met spiegel. Uiteraard kan ook in de badkamer de vloerverwarming niet ontbreken. Tot slot zijn er de 2 slaapkamers die volop ruimte bieden om tot rust te komen. De master bedroom kent een oppervlakte van ca. 14 m² en de tweede slaapkamer een oppervlakte van ca. 11 m². Blijft deze tweede kamer een slaapkamer of wordt het een werkkamer of de slaapkamer voor gasten? De keuze is aan jou! Woningdelen is NIET toegestaan.
Huurprijs p.m. :
Oppervlakte :
Kamers :
Badkamers :
Slaapkamers :
€ 1.925,00
140 m2
3
1
2
Woningtype :
Interieur :
Beschikbaar vanaf :
Beschikbaar tot :
Huisgenoot :
Appartement
n/a
01-12-2025
n/a
0
Badkamer :
Toilet :
Keuken :
Woonkamer :
Internet beschikbaar :
Privé
Privé
Privé
Privé
Ja
Huisdieren :
Roken :
Parkeerplaats :
Fietsenstalling :
Toegestaan
Toegestaan
Niet beschikbaar
Niet beschikbaar