
Maria Stuartplein , 2595 BW Den Haag
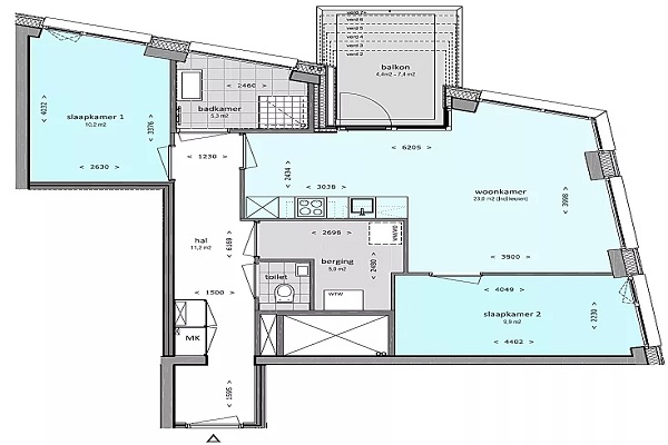
Bij binnenkomst valt direct de moderne afwerking en slimme indeling op. De ruime leefkeuken vormt het kloppend hart van de woning en is volledig uitgerust met hoogwaardige inbouwapparatuur, waaronder een inductiekookplaat met afzuigkap, een combimagnetron, een koel-vriescombinatie en een vaatwasser. Of je nu dagelijks kookt of graag gasten ontvangt voor een diner, deze keuken biedt alle voorzieningen voor een aangename kookervaring. De badkamer is stijlvol ingericht met een ruime inloopdouche en een moderne wastafel met spiegel. Daarnaast is er een separaat toilet aanwezig, wat bijdraagt aan het comfort van de woning. De afwerking is zorgvuldig gekozen en sluit naadloos aan bij de hedendaagse woonwensen, waarbij functionaliteit en uitstraling hand in hand gaan. Een van de grote pluspunten van deze woning is het ruime balkon met een gunstige zuidwestelijke oriëntatie. Vanaf hier geniet je van veel natuurlijk licht en een weids uitzicht over de stad. Dit is een fijne plek om even tot rust te komen na een drukke dag, te genieten van de avondzon of met een goed boek in alle rust buiten te zitten. De ligging van het appartement is werkelijk ideaal. Midden in het centrum van Den Haag profiteer je van de directe nabijheid van winkels, restaurants, openbaar vervoer en culturele voorzieningen. Tegelijkertijd biedt de ligging op de achtste verdieping een rustige woonomgeving, los van de drukte op straatniveau. De bereikbaarheid is uitstekend, zowel met het openbaar vervoer als met de auto, waardoor ook omliggende steden en regio’s eenvoudig te bereiken zijn.
Huurprijs p.m. :
Oppervlakte :
Kamers :
Badkamers :
Slaapkamers :
€ 1.535,00
68 m2
3
1
2
Woningtype :
Interieur :
Beschikbaar vanaf :
Beschikbaar tot :
Huisgenoot :
Appartement
n/a
16-11-2025
n/a
0
Badkamer :
Toilet :
Keuken :
Woonkamer :
Internet beschikbaar :
Privé
Privé
Privé
Privé
Ja
Huisdieren :
Roken :
Parkeerplaats :
Fietsenstalling :
Toegestaan
Toegestaan
Niet beschikbaar
Niet beschikbaar