
Meerring , 5658 LC Eindhoven
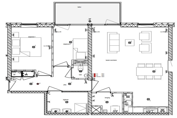
INDELING APPARTEMENTEN -Bellentableau met brievenbussen; -Trapopgang en lift naar verdiepingen. -Entree; -Hal met meterkast en voldoende ruimte voor een garderobe; -(Deels) betegelde toiletruimte voorzien van zwevend toilet en fonteintje; -Woonkamer met open keuken (in hoekopstelling) voorzien van diverse inbouwapparatuur waaronder koelkast, combi-magnetron, inductiekookplaat, afzuigkap en vaatwasser; -Berging voorzien van aansluiting wasapparatuur -Technische ruimte voorzien van unit mechanische ventilatie; -(Deels) betegelde badkamer voorzien van douche en dubbele wastafel; -Slaapkamer 1; -Slaapkamer 2; -Balkon.
Huurprijs p.m. :
Oppervlakte :
Kamers :
Badkamers :
Slaapkamers :
€ 1.625,00
80 m2
3
1
2
Woningtype :
Interieur :
Beschikbaar vanaf :
Beschikbaar tot :
Huisgenoot :
Appartement
n/a
01-12-2025
n/a
0
Badkamer :
Toilet :
Keuken :
Woonkamer :
Internet beschikbaar :
Privé
Privé
Privé
Privé
Ja
Huisdieren :
Roken :
Parkeerplaats :
Fietsenstalling :
Toegestaan
Toegestaan
Niet beschikbaar
Niet beschikbaar