
Anjer , 5803 BK Venray
Deze leuke woning is gelegen aan de Anjer te Venray. In de buurt van een mooi groen wandelveldje liggen deze eengezinswoningen in Venray. In Venray woon je aan de Limburgs/Brabantse grens. Het compacte en gezellige centrum van Venray geeft je de ruimte om lekker te shoppen, uit eten te gaan of een avondje naar het theater te gaan. Met veel groengebied om te ontspannen, een ziekenhuis, een treinstation en grote middelbare school is Venray van alle gemakken voorzien. Venray ligt in een landelijk gebied tussen Venlo en Eindhoven. Deze leuke woning heeft een 2 slaapkamers, een badkamer en een ruime tuin. Wonen aan de Anjer Venray is fijn wonen in een woning met veel voorzieningen in de nabije omgeving.
Huurprijs p.m. :
Oppervlakte :
Kamers :
Badkamers :
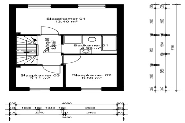
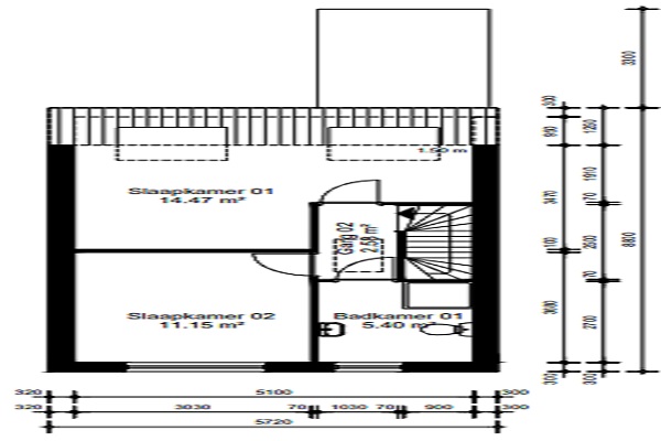
Slaapkamers :
€ 1.150,00
104 m2
3
1
2
Woningtype :
Interieur :
Beschikbaar vanaf :
Beschikbaar tot :
Huisgenoot :
Huurwoning
n/a
17-10-2025
n/a
0
Badkamer :
Toilet :
Keuken :
Woonkamer :
Internet beschikbaar :
Privé
Privé
Privé
Privé
Ja
Huisdieren :
Roken :
Parkeerplaats :
Fietsenstalling :
Toegestaan
Toegestaan
Niet beschikbaar
Niet beschikbaar