
Valkenboskade , 2563 JD Den Haag
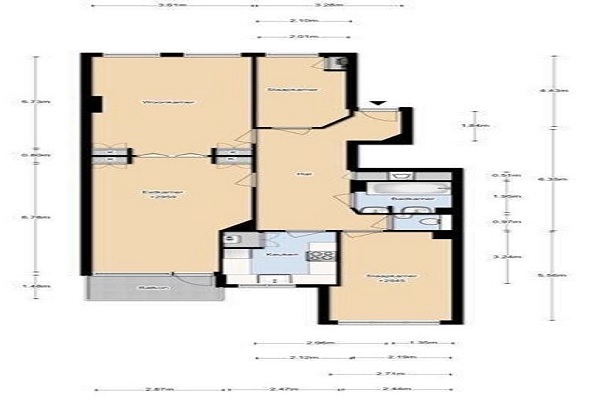
Indeling: Via een gedeelde trap naar de eerste verdieping. Entree van het appartement in een ruime hal, de hal biedt toegang tot alle vertrekken. De lichte en ruime woon- en eetkamer worden gescheiden door schuifdeuren met prachtige glas-in-loodramen. Aan de voorzijde is de woonkamer gelegen met vrij uitzicht over het water. De eetkamer bevindt zich aan de achterzijde van het appartement en biedt toegang tot het balkon. De goed onderhouden keuken is volledig uitgerust met een koel-/vriescombinatie, vaatwasser, oven, afzuigkap en gaskookplaat. Ruime, lichte en privacy biedende hoofdslaapkamer en aan de voorzijde de tweede slaapkamer, ruim genoeg voor een tweepersoonsbed en een kledingkast. De badkamer is voorzien van een dubbele wastafel, douche en ligbad, alles in uitstekende staat, en er is een apart toilet. -de woning is beschikbaar voor maximaal 3 bewoners;
Huurprijs p.m. :
Oppervlakte :
Kamers :
Badkamers :
Slaapkamers :
€ 2.000,00
104 m2
4
1
2
Woningtype :
Interieur :
Beschikbaar vanaf :
Beschikbaar tot :
Huisgenoot :
Appartement
n/a
01-11-2025
n/a
0
Badkamer :
Toilet :
Keuken :
Woonkamer :
Internet beschikbaar :
Privé
Privé
Privé
Privé
Ja
Huisdieren :
Roken :
Parkeerplaats :
Fietsenstalling :
Verboden
Verboden
Niet beschikbaar
Niet beschikbaar