
Voorstraat , 3512 AS Utrecht
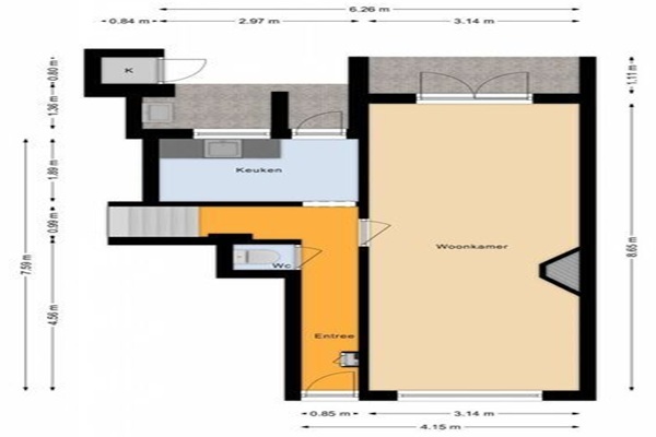
Bevindt zich op de tweede verdieping. Beschikt over één ruimte met een open keuken en een badkamer Keuken is voorzien van diverse keukenapparatuur. Beschikt over een badkamer die is voorzien van een toilet, douche en wastafel. Deze prachtige studio is gelegen in het hart van Utrecht. Alle denkbare voorzieningen zijn gesitueerd op loopafstand. De Voorstraat beschikt over verschillende winkels, gezellige restaurants, supermarkten en staat bekend om de centrale ligging ten opzichte van de binnenstad. Vanaf de Voorstraat is het 10 minuten lopen naar het Centraal Station. Geschikt voor maximaal één persoon.
Huurprijs p.m. :
Oppervlakte :
Kamers :
Badkamers :
Slaapkamers :
€ 1.450,00
18 m2
1
1
1
Woningtype :
Interieur :
Beschikbaar vanaf :
Beschikbaar tot :
Huisgenoot :
Studio
n/a
01-11-2025
n/a
0
Badkamer :
Toilet :
Keuken :
Woonkamer :
Internet beschikbaar :
Privé
Privé
Privé
Privé
Ja
Huisdieren :
Roken :
Parkeerplaats :
Fietsenstalling :
Verboden
Toegestaan
Niet beschikbaar
Niet beschikbaar