
Cassandraplein , 5631 BB Eindhoven
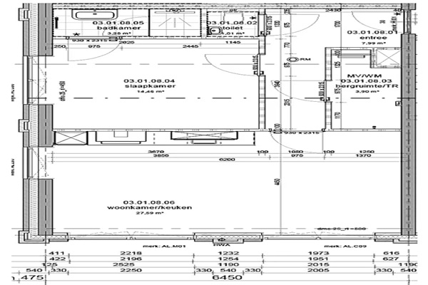
Indeling Gezamenlijke entree met bellentableau, brievenbussen en trapopgang naar de 1e verdieping. Tweede verdieping Via de galerij loopt u naar de gezamenlijke entree voor een tweetal appartementen. Eén op de eerste verdieping en één op de tweede verdieping. De gezamenlijke hal is voorzien van eigen meterkast, cv opstelling en internetmodem. Tevens kunt u vanuit de galerij naar de gezamenlijke berging en de afgesloten parkeergarage in de kelder. Vanuit uw eigen voordeur treedt u de hal binnen welke toegang geeft tot de woonkamer, de slaapkamer en badkamer. Vanuit de hal hebt u ook toegang tot de deels betegelde toiletruimte met zwevend closet. Het gehele appartement is voorzien van luxe houten pvc vloer. De woonkamer en eethoek is volledig ingericht en voorzien van smart tv, internet en strakke wand- en plafondafwerking. Tevens geniet de woonkamer van veel lichtinval middels de grote raampartijen en vrij uitzicht. De moderne en luxe open keuken is van alle gemakken voorzien. Namelijk een 4-pits gaskookplaat, RVS afzuigkap, combimagnetron, koelkast met vriesvak lades, vaatwasser en alle inventaris die u nodig hebt in de keuken. De ruime slaapkamer met luxe tweepersoons boxspring, ruime kledingkast en een strakke wand- en plafondafwerking en een ruimte voor een werkplek. De slaapkamer met hoge raampartij zorgt voor veel lichtinval in deze ruimte. De geheel betegelde moderne badkamer is uitgerust met een regendouche en handdouche met thermostaatkraan, vaste wastafel met wastafelmeubel, ligbad, designradiator, wasmachine en droger.
Huurprijs p.m. :
Oppervlakte :
Kamers :
Badkamers :
Slaapkamers :
€ 1.600,00
47 m2
2
1
1
Woningtype :
Interieur :
Beschikbaar vanaf :
Beschikbaar tot :
Huisgenoot :
Appartement
n/a
01-02-2026
n/a
0
Badkamer :
Toilet :
Keuken :
Woonkamer :
Internet beschikbaar :
Privé
Privé
Privé
Privé
Ja
Huisdieren :
Roken :
Parkeerplaats :
Fietsenstalling :
Toegestaan
Toegestaan
Niet beschikbaar
Niet beschikbaar