
Kokkelertstraat , 6116 AR Roosteren
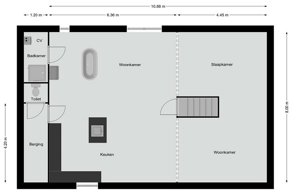
Via de authentieke entree, een antieke lift, bereiken we ‘De Loft’. Deze wooneenheid is in 2005 gerenoveerd en voorzien van één ruimte die door middel van een ophoging verdeeld wordt. Ook in deze ruimte kun jij jouw creativiteit de vrije loop laten. Door een ruim woonoppervlak, beschik je over voldoende ruimte voor het realiseren van een heerlijke woonplek. De keuken bevindt zich achterin de ruimte en is voorzien van: koelkast, gasfornuis, oven, afzuigkap en een spoeleiland. Vanuit de toegangsdeur achter de keuken is er toegang tot een handige opbergkast en het toilet. Aan de rechterkant van de keuken vinden we de ‘open badkamer’. Het robuuste ligbad is de eyecatcher van deze ruimte. Daarnaast is er een separate doucheruimte, hier bevindt zich tevens de cv-installatie (Remeha, 2012, eigendom).
Huurprijs p.m. :
Oppervlakte :
Kamers :
Badkamers :
Slaapkamers :
€ 775,00
91 m2
1
1
1
Woningtype :
Interieur :
Beschikbaar vanaf :
Beschikbaar tot :
Huisgenoot :
Studio
n/a
14-10-2025
n/a
0
Badkamer :
Toilet :
Keuken :
Woonkamer :
Internet beschikbaar :
Privé
Privé
Privé
Privé
Ja
Huisdieren :
Roken :
Parkeerplaats :
Fietsenstalling :
Toegestaan
Toegestaan
Niet beschikbaar
Niet beschikbaar