
Rietgrachtstraat , 6828 KC Arnhem
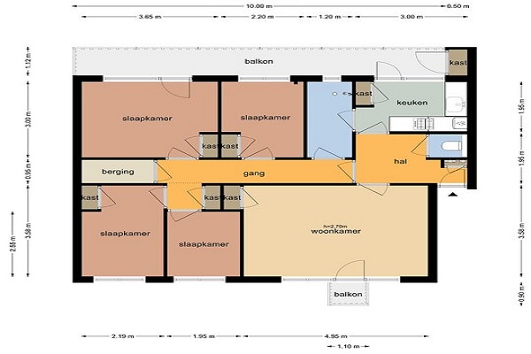
Indeling: entree, hal, toilet, meterkast, gang, woonkamer met klein balkon aan de voorzijde, vier slaapkamers, badkamer met vaste wastafel en inloopdouche, luxe keuken voorzien van inductie kookplaat, afzuigkap, combi oven/magnetron, vaatwasser, deur naar balkon aan achterzijde over de gehele breedte. De gehele woning is voorzien van kunststof kozijnen met dubbele beglazing. Verwarming en warmwater middels c.v.-gas. Parkeren met vergunninghouderkaart of betaalautomaat
Huurprijs p.m. :
Oppervlakte :
Kamers :
Badkamers :
Slaapkamers :
€ 1.100,00
75 m2
5
1
4
Woningtype :
Interieur :
Beschikbaar vanaf :
Beschikbaar tot :
Huisgenoot :
Appartement
n/a
14-10-2025
n/a
0
Badkamer :
Toilet :
Keuken :
Woonkamer :
Internet beschikbaar :
Privé
Privé
Privé
Privé
Ja
Huisdieren :
Roken :
Parkeerplaats :
Fietsenstalling :
Verboden
Verboden
Niet beschikbaar
Niet beschikbaar