
Raaimoeren , 4824 KB Breda
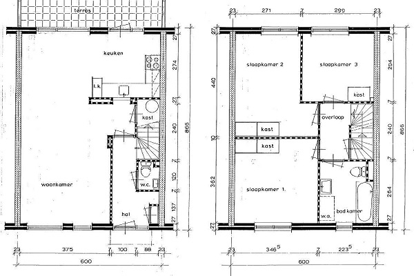
Indeling Via de voortuin bereik je de entree van de woning. In de hal bevinden zich de toiletruimte, de meterkast en de trapopgang naar de eerste verdieping. Vanuit de hal kom je in de ruime en lichte woonkamer. Aan de achterzijde van de woning bevindt zich de halfopen keuken met toegang tot de achtertuin – ideaal voor wie van buitenruimte houdt. Op de eerste verdieping zijn drie goed bemeten slaapkamers gelegen. De badkamer is voorzien van een ligbad, aparte douche, wastafel en een tweede toilet.
Huurprijs p.m. :
Oppervlakte :
Kamers :
Badkamers :
Slaapkamers :
€ 1.295,00
115 m2
4
1
3
Woningtype :
Interieur :
Beschikbaar vanaf :
Beschikbaar tot :
Huisgenoot :
Huurwoning
n/a
13-10-2025
n/a
0
Badkamer :
Toilet :
Keuken :
Woonkamer :
Internet beschikbaar :
Privé
Privé
Privé
Privé
Ja
Huisdieren :
Roken :
Parkeerplaats :
Fietsenstalling :
Toegestaan
Toegestaan
Niet beschikbaar
Niet beschikbaar