
Wibautstraat , 1091 GR Amsterdam
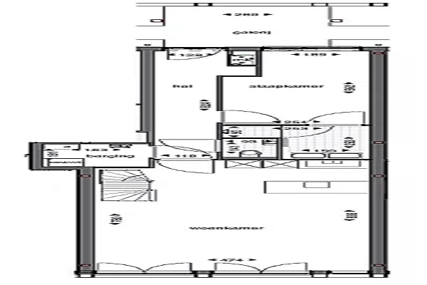
In dit ruime 2-kamer appartement voel je meteen dat alles klopt. Vanuit de hal stap je de sfeervolle slaapkamer binnen, ruim genoeg voor een groot bed en een kast. De badkamer is modern en strak afgewerkt, met een comfortabele douche om fris aan je dag te beginnen. Een apart toilet en een handige berging maken het plaatje compleet. En dan de woonkamer… wat een licht! Dankzij de grote ramen aan de voorzijde baadt de ruimte in zonlicht. Hier is plek om te ontspannen, te koken, te eten, te werken – wat jij maar wilt. De open keuken met kookeiland nodigt uit tot lange avonden met vrienden, een goed glas wijn en jouw favoriete recepten. Dit appartement is onderdeel van een stijlvol en strak vormgegeven complex aan de levendige Wibautstraat. Een plek waar oud en nieuw samenkomen, waar je de energie van de stad voelt, maar ook je eigen rustige plek hebt. Met metrostation Wibautstraat om de hoek en hotspots zoals de Amstel, de Pijp en het centrum op loop- of fietsafstand, woon je hier precies waar alles gebeurt. Kortom:Floor biedt een unieke kans om stijlvol en comfortabel te wonen in een bruisende en centrale omgeving.
Huurprijs p.m. :
Oppervlakte :
Kamers :
Badkamers :
Slaapkamers :
€ 1.904,00
74 m2
2
1
1
Woningtype :
Interieur :
Beschikbaar vanaf :
Beschikbaar tot :
Huisgenoot :
Appartement
n/a
13-10-2025
n/a
0
Badkamer :
Toilet :
Keuken :
Woonkamer :
Internet beschikbaar :
Privé
Privé
Privé
Privé
Ja
Huisdieren :
Roken :
Parkeerplaats :
Fietsenstalling :
Toegestaan
Toegestaan
Niet beschikbaar
Niet beschikbaar