header-logo2.png Huurflits

Appartement Maria Stuartplein in Den Haag

Maria Stuartplein , 2595 BW Den Haag

€ 900,00 excl. G/W/E

Beschrijving

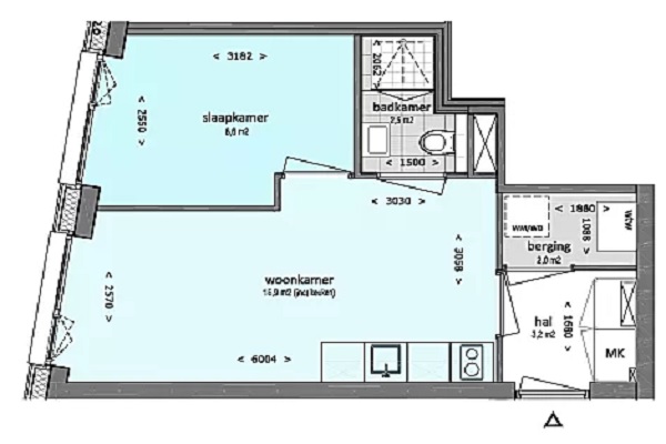
Het appartement voelt ruim en licht dankzij de grote ramen en de praktische indeling. De keuken is voorzien van moderne inbouwapparatuur, waaronder een inductiekookplaat met afzuigkap en een combimagnetron – alles wat je nodig hebt om direct aan de slag te gaan. De badkamer is netjes afgewerkt en uitgerust met een wastafel, ruime douche en toilet. Alles oogt fris en verzorgd. Dit appartement valt onder de huurregeling van de gemeente Den Haag. Er geldt een verplichte levering van verwarming, koeling en warm tapwater via Eteck. De getoonde afbeeldingen zijn ter illustratie en kunnen afwijken van de werkelijkheid.

Verstuur een bericht

Door een bericht te sturen kom je in contact met de aanbieder of makelaar van de woning.

Bericht versturen

Woningdetails

  • Huurprijs p.m. :

  • Oppervlakte :

  • Kamers :

  • Badkamers :

  • Slaapkamers :

  • € 900,00

  • 35 m2

  • 2

  • 1

  • 1

  • Woningtype :

  • Interieur :

  • Beschikbaar vanaf :

  • Beschikbaar tot :

  • Huisgenoot :

  • Appartement

  • n/a

  • 01-11-2025

  • n/a

  • 0

Faciliteiten

  • Badkamer :

  • Toilet :

  • Keuken :

  • Woonkamer :

  • Internet beschikbaar :

  • Privé

  • Privé

  • Privé

  • Privé

  • Ja

  • Huisdieren :

  • Roken :

  • Parkeerplaats :

  • Fietsenstalling :

  • Toegestaan

  • Toegestaan

  • Niet beschikbaar

  • Niet beschikbaar

Locatie