
Boslaan , 7951 CB Staphorst
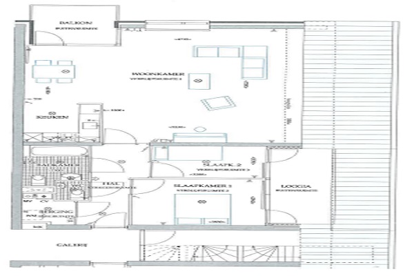
Indeling: entree, ruime hal met garderobe en toegang tot de woonvertrekken: de woonkamer met keuken, 2 slaapkamers, badkamer, toilet en berging. De badkamer is voorzien van toilet, bad, wastafel en douche. De berging is voorzien van de aansluitingen voor de wasapparatuur en de Cv-installatie. Tot dit geheel behoort een praktische berging in de kelder van het complex. De kunststof kozijnen zijn nagenoeg onderhoudsvrij. Parkeergelegenheid is er ruimschoots aanwezig.
Huurprijs p.m. :
Oppervlakte :
Kamers :
Badkamers :
Slaapkamers :
€ 900,00
97 m2
3
1
2
Woningtype :
Interieur :
Beschikbaar vanaf :
Beschikbaar tot :
Huisgenoot :
Appartement
n/a
01-11-2025
n/a
0
Badkamer :
Toilet :
Keuken :
Woonkamer :
Internet beschikbaar :
Privé
Privé
Privé
Privé
Ja
Huisdieren :
Roken :
Parkeerplaats :
Fietsenstalling :
Verboden
Verboden
Niet beschikbaar
Niet beschikbaar