
Omegaplantsoen , 2321 KT Leiden
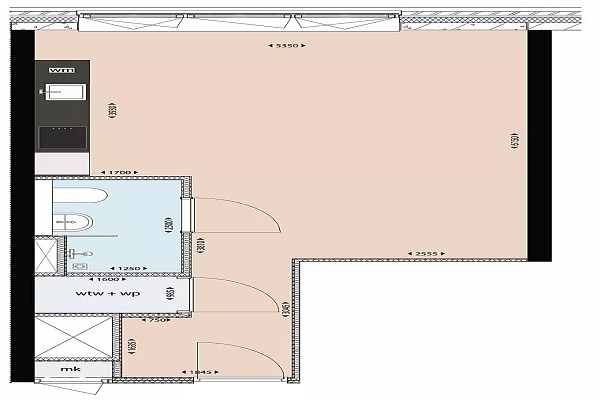
De studio heeft wel een aparte, stijlvolle badkamer waar je ongestoord kunt douchen, inclusief een wastafel en toilet. De badkamer is afgewerkt met zwarte Mosa vloertegels op de vloer en hoogglans witte wandtegels tot aan het plafond – strak en modern. De moderne open keuken van Bribus is voorzien van hoogwaardige ATAG inbouwapparatuur, zodat je gemakkelijk een gezonde lunch of een gezellige maaltijd voor vrienden kunt bereiden. Denk aan een inductiekookplaat, afzuigkap, vaatwasser, oven met geïntegreerde magnetron en een koel-/vriescombinatie. Er is ook een speciale plek voor je wasmachine in de keuken. De indeling van de rest van de studio bepaal jij helemaal zelf. Maak er een multifunctionele ruimte van met een slaapbank, of creëer een subtiele scheiding met een kamerscherm. Wees creatief en maak het helemaal jouw plek! De is verder al voorzien van een neutrale vloer en velours gordijnen, zodat je alleen nog je verhuisdozen en favoriete meubels hoeft mee te nemen.
Huurprijs p.m. :
Oppervlakte :
Kamers :
Badkamers :
Slaapkamers :
€ 1.006,00
40 m2
1
1
1
Woningtype :
Interieur :
Beschikbaar vanaf :
Beschikbaar tot :
Huisgenoot :
Studio
n/a
13-10-2025
n/a
0
Badkamer :
Toilet :
Keuken :
Woonkamer :
Internet beschikbaar :
Privé
Privé
Privé
Privé
Ja
Huisdieren :
Roken :
Parkeerplaats :
Fietsenstalling :
Toegestaan
Toegestaan
Niet beschikbaar
Niet beschikbaar