
Oude Haagweg , 2552 NH Den Haag
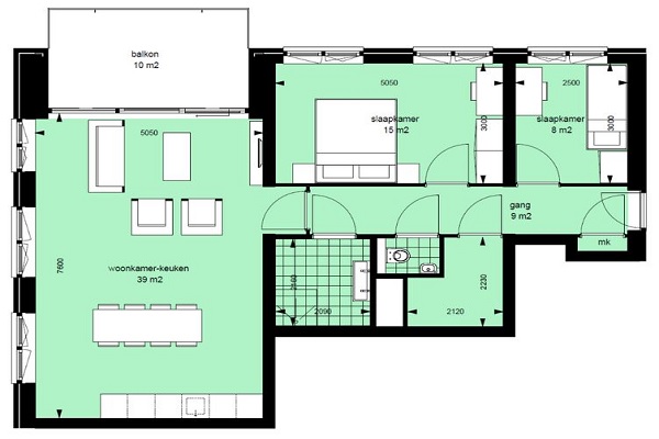
Gezamenlijke entree; lift naar 3e verdieping; voordeur. Binnenkomst in de hal. Rechts bevinden zich de 2 ruime slaapkamers Aan de rechterzijde de badkamer voorzien van inloopdouche, handdoekradiator en wastafelmeubel. Hiernaast apart toilet. Aan het einde van de gang bevind zich de zeer ruime woonkamer met hoge ramen, toegang tot balkon en open keuken voorzien van koelkast met vriesvak, gasfornuis, afzuigkap, combi oven-magnetron en vaatwasser. Opberghok naast de keuken met wasmachine aansluiting. Berging aanwezig in de kelder Beschikbaar voor werkend persoon of stel
Huurprijs p.m. :
Oppervlakte :
Kamers :
Badkamers :
Slaapkamers :
€ 2.000,00
82 m2
3
1
2
Woningtype :
Interieur :
Beschikbaar vanaf :
Beschikbaar tot :
Huisgenoot :
Appartement
n/a
11-10-2025
n/a
0
Badkamer :
Toilet :
Keuken :
Woonkamer :
Internet beschikbaar :
Privé
Privé
Privé
Privé
Ja
Huisdieren :
Roken :
Parkeerplaats :
Fietsenstalling :
Toegestaan
Toegestaan
Niet beschikbaar
Niet beschikbaar