
Gedempte Nieuwesloot , 1811 KP Alkmaar
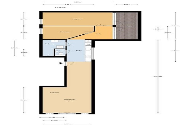
Indeling: Begane grond: afgesloten entree met brievenbus, intercom, meterkast, gezamenlijke fietsenberging en trapopgang. Eerste verdieping: entree, royale woonkamer (ruim 60 m2) met openslaande deuren ( frans balkon ) aan de voorzijde. De sfeervolle balken en de half ronde gevelramen herinneren je aan de eerste bestemming als pakhuis. Moderne keuken met diverse inbouwapparatuur ( inductie kookplaat, afzuigkap, vaatwasser, oven, koel-vriescombinatie ), moderne badkamer uitgevoerd met ruime douche en wastafel, apart toilet, eerste ruime slaapkamer met toegang tot het terras en tweede ruime slaapkamer, een lichte tussenruimte met toegang tot het heerlijke buitenterras.
Huurprijs p.m. :
Oppervlakte :
Kamers :
Badkamers :
Slaapkamers :
€ 1.700,00
90 m2
3
1
2
Woningtype :
Interieur :
Beschikbaar vanaf :
Beschikbaar tot :
Huisgenoot :
Appartement
n/a
01-11-2025
n/a
0
Badkamer :
Toilet :
Keuken :
Woonkamer :
Internet beschikbaar :
Privé
Privé
Privé
Privé
Ja
Huisdieren :
Roken :
Parkeerplaats :
Fietsenstalling :
Verboden
Verboden
Niet beschikbaar
Niet beschikbaar