
Hoekstraat , 5931 GJ Tegelen
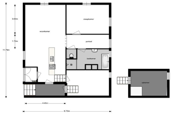
Indeling: In het Kranenbreukershuis zijn in totaal 4 verhuureenheden gelegen. Hoekstraat bg is gelegen op de begane grond. Entree, ruime woonkamer met open keuken voorzien van een roodbruine tegelvloer met vloerverwarming en openslaande deuren naar het terras en (deels gemeenschappelijke) tuin. In de tuin is een houten berging aanwezig. Aan de straatzijde is een parkeerplaats beschikbaar, behorend bij deze woning. De woonkamer kenmerkt zich door de hoogte van ca. 3.30 m met stoer houten balkenplafond, de bakstenen inbouw van de oude kelder met opkamer en de overige wit gestukadoorde wanden. Slaapkamer van 14 m² voorzien van een tegelvloer met vloerverwarming. Een slaapkamer van ca. 13 m² in de oude opkamer, voorzien van houten vloerdelen en beperkte stahoogte tot 2 meter. Badkamer met tegelvloer van ca. 8,5 m², voorzien van ligbad, inloopdouche met thermostaatkraan en wastafel. In de badkamer is een aansluiting voor wasmachine en -droger. Separaat toilet aanwezig met fontein. Er is een kelder met beperkte stahoogte tot 1,80 m. Hierin is de HR combi-cv ketel geplaatst.
Huurprijs p.m. :
Oppervlakte :
Kamers :
Badkamers :
Slaapkamers :
€ 1.050,00
114 m2
3
1
2
Woningtype :
Interieur :
Beschikbaar vanaf :
Beschikbaar tot :
Huisgenoot :
Appartement
n/a
08-10-2025
n/a
0
Badkamer :
Toilet :
Keuken :
Woonkamer :
Internet beschikbaar :
Privé
Privé
Privé
Privé
Ja
Huisdieren :
Roken :
Parkeerplaats :
Fietsenstalling :
Toegestaan
Toegestaan
Niet beschikbaar
Niet beschikbaar