
Jodenstraat , 5911 HJ Venlo
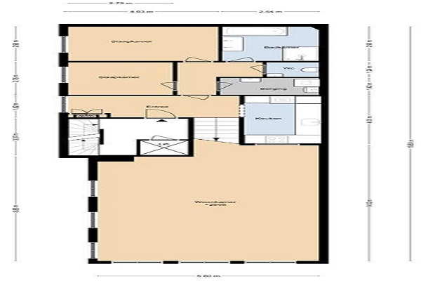
De entree/ hal geeft toegang tot de royale woonkamer, de aparte keuken en een portaal. De woonkamer (ca. 51m²) biedt een mooi uitzicht op de Oude Markt. De luxe, hoogwaardig afgewerkte keuken is ingericht met een inductiekookplaat met ingebouwde afzuiging, combi-oven, vaatwasser en koelkast. Vanuit het portaal is er toegang tot de inpandige berging, de toiletruimte, 2 slaapkamers en de badkamer. De toiletruimte is voorzien van een zwevend closet en fonteintje. De slaapkamers zijn ca. 7,5m² en 12m² groot. De badkamer is ingericht met een ligbad, douchecabine met glazen wanden, een dubbele wastafel met meubel en inbouwspots. In het souterrain bevindt zich een eigen berging van ca. 22,5m².
Huurprijs p.m. :
Oppervlakte :
Kamers :
Badkamers :
Slaapkamers :
€ 2.000,00
111 m2
3
1
2
Woningtype :
Interieur :
Beschikbaar vanaf :
Beschikbaar tot :
Huisgenoot :
Appartement
n/a
08-10-2025
n/a
0
Badkamer :
Toilet :
Keuken :
Woonkamer :
Internet beschikbaar :
Privé
Privé
Privé
Privé
Ja
Huisdieren :
Roken :
Parkeerplaats :
Fietsenstalling :
Toegestaan
Toegestaan
Niet beschikbaar
Niet beschikbaar