header-logo2.png Huurflits

Appartement Nobelstraat in Rotterdam

Nobelstraat , 3039 SK Rotterdam

€ 1.995,00 excl. G/W/E

Beschrijving

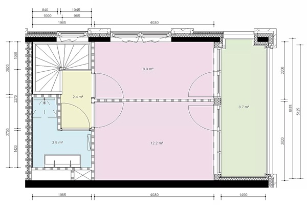
Indeling 3e verdieping: Overloop met meterkast en toilet. De woonkamer is erg licht met veel glas door hoekligging aan de voorzijde. De 1e slaapkamer bevind zich op de 3e etage naast de woonkamer. De keuken is voorzien van een koelkast, vriezer, 4pits gaskookplaat, hete-lucht oven, vaatwasser en afzuigkap.De hele verdieping is voorzien van een fraaie laminaar vloer. Via een vaste trap is er toegang tot de 4e verdieping: Op de 4e verdieping bevind zich de 3e slaapkamer en de ruime waskamer voorzien was wasmachine en droger. Het appartement is geschikt voor 3 buitenlandse studenten en is beschikbaar voor een periode van maximaal 2 jaar.

Verstuur een bericht

Door een bericht te sturen kom je in contact met de aanbieder of makelaar van de woning.

Bericht versturen

Woningdetails

  • Huurprijs p.m. :

  • Oppervlakte :

  • Kamers :

  • Badkamers :

  • Slaapkamers :

  • € 1.995,00

  • 90 m2

  • 3

  • 1

  • 3

  • Woningtype :

  • Interieur :

  • Beschikbaar vanaf :

  • Beschikbaar tot :

  • Huisgenoot :

  • Appartement

  • n/a

  • 02-09-2025

  • n/a

  • 0

Faciliteiten

  • Badkamer :

  • Toilet :

  • Keuken :

  • Woonkamer :

  • Internet beschikbaar :

  • Privé

  • Privé

  • Privé

  • Privé

  • Ja

  • Huisdieren :

  • Roken :

  • Parkeerplaats :

  • Fietsenstalling :

  • Toegestaan

  • Toegestaan

  • Niet beschikbaar

  • Niet beschikbaar

Locatie