header-logo2.png Huurflits

Appartement Vleutenseweg in Utrecht

Vleutenseweg , 3532 HZ Utrecht

€ 2.000,00 incl. G/W/E

Beschrijving

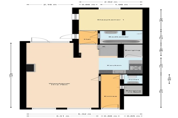
Indeling: Via de eigen voordeur komen we binnen in de hal met toegang tot het toilet en de toegang tot de royale woonkamer die op een natuurlijke manier is verdeeld in een woonkamer aan de voorzijde en een eetkamer aan de achterzijde waar we tevens de toegang tot de heerlijke tuin treffen. De open keuken grenst aan de woonkamer en deze is voorzien van een 6-pits gasfornuis, afzuigkap, oven, koel-vriescombinatie en een vaatwasser. Onder de trap naar de eerste verdieping treffen we de aansluitingen voor de wasapparatuur. Via de gang in het achterste deel van het huis komen we bij de badkamer die is voorzien van een ligbad, douche en een wastafel inclusief wastafelmeubel. De eerste slaapkamer treffen we aan de achterzijde en deze is ruim 12 m2 groot. De tuin van ruim 55 m2 is een absoluut pareltje en biedt meer dan voldoende ruimte voor een grote eettafel, een loungeplek en een eventuele buitenkeuken. We komen boven op een kleine overloop met een vaste kast en de netjes weggewerkte CV-ketel (2025). Vanaf de overloop is de tweede slaapkamer bereikbaar en deze heeft een doorloop naar de derde (slaap)kamer.

Verstuur een bericht

Door een bericht te sturen kom je in contact met de aanbieder of makelaar van de woning.

Bericht versturen

Woningdetails

  • Huurprijs p.m. :

  • Oppervlakte :

  • Kamers :

  • Badkamers :

  • Slaapkamers :

  • € 2.000,00

  • 93 m2

  • 4

  • 1

  • 3

  • Woningtype :

  • Interieur :

  • Beschikbaar vanaf :

  • Beschikbaar tot :

  • Huisgenoot :

  • Appartement

  • n/a

  • 01-01-2026

  • n/a

  • 0

Faciliteiten

  • Badkamer :

  • Toilet :

  • Keuken :

  • Woonkamer :

  • Internet beschikbaar :

  • Privé

  • Privé

  • Privé

  • Privé

  • Ja

  • Huisdieren :

  • Roken :

  • Parkeerplaats :

  • Fietsenstalling :

  • Toegestaan

  • Toegestaan

  • Niet beschikbaar

  • Niet beschikbaar

Locatie