
Europalaan , 5623 CC Eindhoven
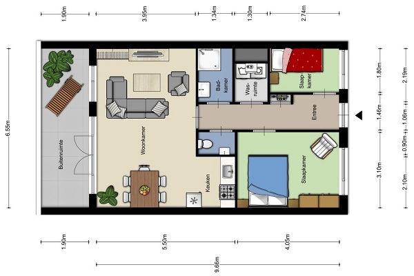
Indeling Centrale entree met bellentableau, brievenbussen en toegang tot de trappen, lift en gezamenlijke binnenplaats. Toegang tot het appartement. Hal die toegang biedt tot de slaapkamers, badkamer en woonkamer. Apart toilet met hangend closet en fonteintje. De ruime woonkamer is voorzien van fraaie hout-look vloer. Toegang tot het ruime balkon. De grote ramen zorgen voor veel lichtinval. Volledige nieuwe keuken voorzien van gaskookplaat, koel-vriescombinatie, combi-magnetron, vaatwasser en volop kastruimte. Via de hal bereikt u de eerste slaapkamer welke voldoende ruimte biedt aan een 2-persoonsbed en een grote kledingskast. Tweede slaapkamer. Nette badkamer met inloopdouche en wastafel. Ruime bergkamer met aansluiting voor de wasapparatuur. Het appartement is voorzien van een berging en eigen parkeerplaats.
Huurprijs p.m. :
Oppervlakte :
Kamers :
Badkamers :
Slaapkamers :
€ 1.260,00
85 m2
3
1
2
Woningtype :
Interieur :
Beschikbaar vanaf :
Beschikbaar tot :
Huisgenoot :
Appartement
n/a
01-02-2026
n/a
0
Badkamer :
Toilet :
Keuken :
Woonkamer :
Internet beschikbaar :
Privé
Privé
Privé
Privé
Ja
Huisdieren :
Roken :
Parkeerplaats :
Fietsenstalling :
Toegestaan
Toegestaan
Niet beschikbaar
Niet beschikbaar